О товаре:
- Длинна: 3260 мм.
- Ширина: 3260 мм.
- Высота: 3710 мм.
- Вес: 21080 кг.
- ГОСТ, Серия: Серия 3.903 КЛ-13 скачать
- Объем бетона: 8,432 м3
- Геометрический объем: 39,4284 м3
Стандарт изготовления изделия: Серия 3.903 КЛ-13
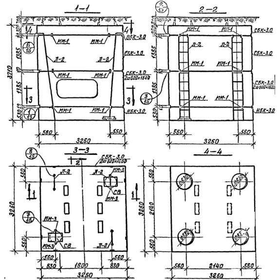
Тепловая Камера 3,0-3,0-3,4 - это сборная железобетонная конструкция, представляет собой коробчатое сооружение. Согласно Серии изготовления 3.903 КЛ-13, в камере могут быть запроектированы одно, два отверстия или люк. Камера 3,0-3,0-3,4 состоит из нескольких блоков (верхний, средний и нижний). Такие изделия является устройством подземных инженерных коммуникаций, и могут применяться на сетях водопровода, канализации, а также газовых сетях. К характеристикам конструкции можно отнести прочность и выносливость, так как после погружения в грунт, она постоянно испытывает от него нагрузку, также давление оказывает транспорт. Дополнительно в изделие при производстве заложена стойкость к воздействию грунтовых вод, большой влажности и переменам температур. Железобетонная Камера 3,0-3,0-3,4 предназначена для применения в условиях слабоагрессивной среды.
Расшифровка маркировки изделия
Железобетонная тепловая камера, в том числе все ее составляющие элементы, имеет маркировку, которая при работе с изделиями облегчает их поиск в номенклатурном ряду. Марка содержит в себе краткую сжатую информацию о конструкции. Так если рассматривать расшифровку Камера 3,0-3,0-3,4, можно увидеть следующее:
1. Камера - тип конструкции;
2. 3,0 - внутренняя длина в м;
3. 3,0 - внутренняя ширина в м;
4. 3,4 - внутренняя высота в м.
Маркировочные знаки указываются на внешней поверхности готового изделия, с помощью резиновых штампов или трафарета. Используемая краска должна быть особого состава, для того чтобы надписи не стерлись случайным образом, под различными воздействиями окружающей среды.
Материалы и производство
Изготовление тепловых камер регламентировано Серией 3.903 КЛ-13. Составляющие ее блоки производят в заводских условиях или на полигонах предприятий строительной индустрии. Изделия изготавливаются из гидротехнического бетона марки М300, класса В22,5. Марка бетонной массы по морозостойкости равна F150, по водонепроницаемости - W4. Все составляющие компоненты бетона должны по качеству и пропорциям соответствовать нормативу, указанному в Серии изготовления.
Так как тепловая Камера 3,0-3,0-3,4 постоянно испытывает нагрузки от грунта и автомобилей, она должна обладать высокими прочностными свойствами. Для этого ее блоки армируют. Армирование это - дополнительное упрочнение бетонного изделия с помощью добавления в него связанной между собой арматуры. Для изготовления арматурных изделий применяется горячекатаная стержневая арматура класса А-I, А-II, А-III, из которой предусмотрено изготовление сварных сеток и каркасов. Также в тело Камера 3,0-3,0-3,4 закладываются монтажные петли, которые упрощают работу с изделием при монтаже и транспортировке. Они изготавливаются из гладких стержней из стали класса A-I. Все закладные и накладные детали должны иметь антикоррозийное цинковое покрытие, наносимое одним из следующих способов: металлизацией или горячим цинкованием.
Для оценки качества изготовления всех элементов тепловой камеры по прочности и трещиностойкости предприятие-изготовитель производит контрольные испытания в соответствии ГОСТ 8829-35. Итогом является присвоения изделию документа качества.
Хранение и транспортировка
Камера 3,0-3,0-3,4 складируют в специально оборудованных для этого помещениях с выровненной плотной поверхностью и уклоном для отведения воды. Транспортирование разрешается производить всеми видами транспорта, при этом должно обеспечиваться надежное крепление изделий и их сохранность. Подъем, погрузка и разгрузка осуществляется краном с захватом за монтажные петли.

